Clicca per ingrandire

Porto Azzurro - Centro storico (cod. EG1072)

Wohnung

72 mq - 2 zimmer - 1 bad

euro 260.000,00


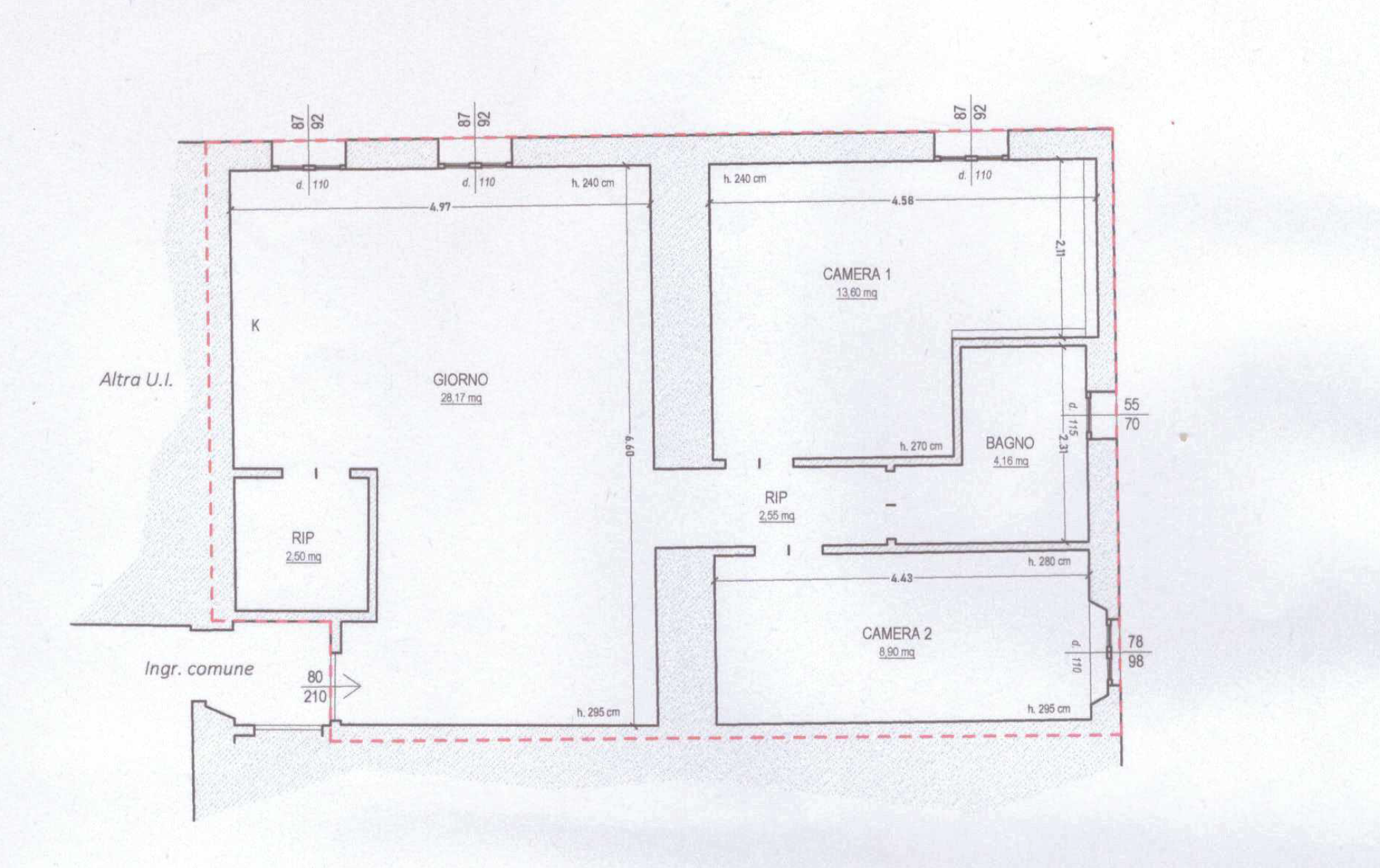
Im charmanten historischen Zentrum von Porto Azzurro, nur 50 Meter vom Hauptplatz, dem Hafen und dem Meer entfernt, bieten wir eine gemütliche Wohnung im dritten und letzten Stock eines charakteristischen historischen Gebäudes zum Verkauf an. Die Immobilie zeichnet sich durch ihre strategische Lage aus und besteht aus einem Wohnzimmer mit offener Küche, einem Schlafzimmer mit Doppelbett, einem Kinderzimmer, einem Badezimmer, einem Flur sowie einem praktischen Abstellraum in Küchennähe. Ausgestattet mit einem Pelletofen und einer Klimaanlage (warm/kalt), bietet die Wohnung zu jeder Jahreszeit hohen Wohnkomfort und eignet sich sowohl als Hauptwohnsitz als auch als Ferienwohnung oder Investitionsobjekt. Die unmittelbare Nähe zum Meer und zu allen wichtigen Dienstleistungen macht diese Immobilie zur idealen Lösung für alle, die in einer der gefragtesten und lebendigsten Ortschaften der Insel Elba leben oder entspannte Momente genießen möchten. Für weitere Informationen oder zur Vereinbarung eines Besichtigungstermins stehen wir Ihnen gerne zur Verfügung!

ReferenzEG1072
TypWohnung
Stockwerk3
Fläche (m2)72
GartenNein
Terrasse/BalkonNein
Zimmerzahl2
Zahl der Bäder1
HeizungJa
Entfernung vom Meer50 m
Autostellplatz/GarageNein
Classe energeticaG
[DE] Spese CondominialiKeine
KlimaanlageJa

KONTAKTIEREN SIE DEN AGENTEN


Enrico
Andreotti

Immobilienmakler
3 Jahre Erfahrung

Enrico Andreotti
Immobilienmakler
3 Jahre Erfahrung

PINNWAND


Periferia
Cod. D1111

Periferia
Cod. M1104

Marina di Campo
Cod. EG1052

Centro
Cod. EG1066

immobilelba
immobilelba

warten Sie Bitte...