Clicca per ingrandire

Portoferraio - Periferia (cod. E1028)

Steinhaus

120 mq - 3 zimmer - 2 bad

euro 700.000,00


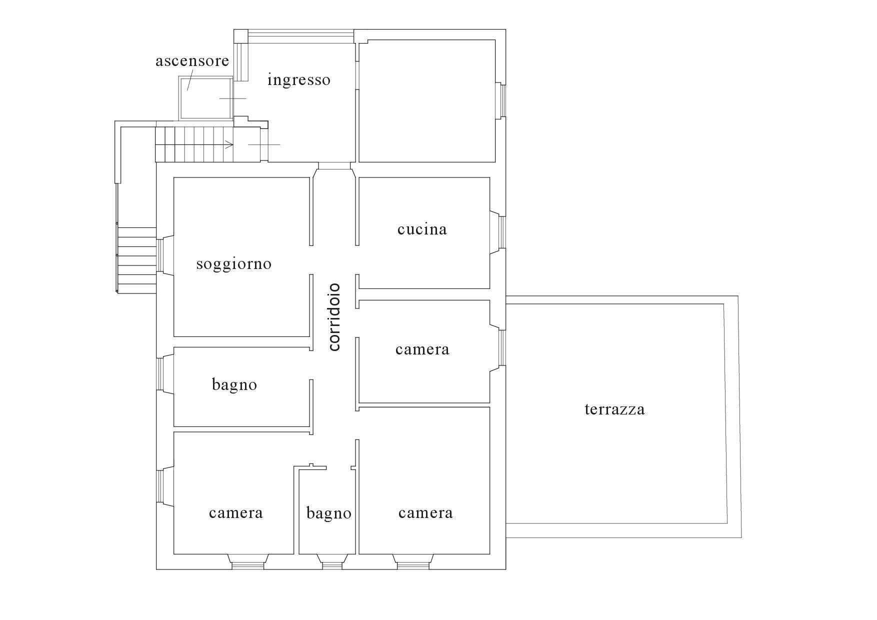
Landgut im Grünen zwischen Portoferraio und Capoliveri, in strategisch günstiger Lage, da die Hauptstraße etwa 150 Meter von der Anlage entfernt liegt. Das Anwesen besteht aus mehreren separaten Gebäuden, da hier früher Öl und Wein hergestellt wurden – aus den noch vorhandenen rund 90 Olivenbäumen und dem inzwischen nicht mehr existierenden Weinberg – innerhalb des 30.000 Quadratmeter großen, ebenen Grundstücks, das das Wohnhaus umgibt. Die Hauptwohnung befindet sich im ersten Stock und besteht aus einem Eingangsbereich, einem großzügigen Wohnzimmer, drei Schlafzimmern, einer Küche, zwei Bädern und einer nach Südosten ausgerichteten Terrasse mit einer Gesamtfläche von ca. 120 m². Im Erdgeschoss befinden sich eine Garage, ein Heizraum und große Keller, die früher zur Verarbeitung der landwirtschaftlichen Produkte genutzt wurden. Neben dem Hauptgebäude gibt es zwei bereits eingetragene kleine Apartments sowie mehrere derzeit ungenutzte Nebengebäude. Ein typischer zweistöckiger Heuschober rundet das Anwesen ab.

ReferenzE1028
StockwerkEG/-1
Fläche (m2)120
GartenJa
Garten (m2)30000
Terrasse/BalkonJa
Zimmerzahl3
Zahl der Bäder2
HeizungNein
Entfernung vom Meer2 km
MeeresblickNein
Autostellplatz/GarageJa
Classe energeticaG
[DE] Spese CondominialiKeine
KlimaanlageNein

KONTAKTIEREN SIE DEN AGENTEN


Enrico
Andreotti

Immobilienmakler
3 Jahre Erfahrung

Enrico Andreotti
Immobilienmakler
3 Jahre Erfahrung

PINNWAND


immobilelba
immobilelba

warten Sie Bitte...